古民家ってある意味、文化財でもあるし日本の宝でもあるよね。
古民家を愛する皆さんお待たせしました、12BASEのイチがDIYする古民家再生の時間です。
今回の古民家、ちょっと規模が・・・・大きいんです。
建物の規模が532.8㎡(約161坪)なのですよ。
大は小を兼ねると言えど、デカ過ぎね?
間取りは14DKでございます(離れが4部屋)
母屋に離れ、蔵が回廊で結ばれてます、この古民家をどのようにDIY再生するのかを、お話しするんですけど、状態はめちゃ良いのよ、そしてリフォームされている箇所が1箇所だけ、元々土間だった場所が洋室にリフォームされているけど、そこだけかな、後は当時のままの状態、もちろん、ちょいちょい手直しが入ってるけど124年前の状態を保ってる。

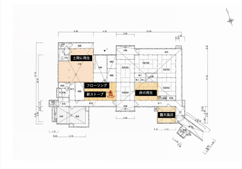
早速だけど、図面と睨めっこして考えた計画がこれ↓
色をつけてる場所がDIY箇所、少なくね?って思うでしょ、それだけ状態が良いという事でもあるんだけど、極力手直しで当時の状態を維持したいんです。
だってさぁ、大規模リフォームして当時の面影なくなった古民家って、あれって古民家?って思いません?
使ってるの骨組みだけじゃね?築100年の古民家をリフォームしましたって、100年前の古材を使いましたの間違いでしょ、古民家とは呼べなくね?
って僕は思うわけです。

これが明治35年築124年の古民家間取り図です。
元は木材商を営んでいたお家だそうです。
なので、露天風呂を作る予定の部屋が、女中部屋だったらしいよ、昔は敷地内にもう1軒のお家があったらしいけど、焼失したらしっす。
洋室の場所が昔は土間だったので、解体して土間に戻し、農作業に使えるようにして、かまどもを設置する予定。
かまどってロマンでしょう、設置するには理由があって、茅葺き屋根にトタンをかぶせてる屋根なんだけど、煙で燻すことで、茅は長持ちするし防虫効果があるんだよ、そして将来的にはトタンを外して茅葺き屋根に戻したいとの思いもあって、かまどを使う事に決めたんだよね。
薪ストーブを設置する部屋は2間続きにしてフローリングにする、この部屋には囲炉裏もあるので冬にはこの部屋で過ごす事になると思うので、家の中心に薪ストーブを設置すること冬を乗り切る計画。
煙突を屋根から垂直に抜くので、場所的にもちょうど良い場所だと思う、部屋の横には物置があるので薪のストックにも使えるのでベストかな。
1部屋だけ、床がベコベコしている箇所がある、ここは床をやり直して再生する。
そして、女中部屋を露天風呂にするよ、今回のDIY1番の目玉かな、もちろんお風呂はあるんだけどね、宿のお客さんに入ってもらえる、露天風呂は宿の目玉にする。
その横にトイレ?
ぼっとんトイレがあるんだけど現状使えないと思うから、そこも水洗トイレにする予定だけど、まだ未定。
後は、ちょこまかとした修繕があると思う、今回は基本的に現状を再生するDIYだから、大掃除してDIYって感じになるかな。
母屋はこんな感じで考えてるけど、宿にする離れはこれから考える、と言うのも母屋より離れの方がちょいヤバイのよ、問題は屋根、瓦屋根が傷んでて雨漏りしてるから、ここは業者の任す。
どの程度の予算が必要か分かんないからビビってる。
1番最初に直す、最重要箇所!
これから、細部を詰めながら資材代などの計算をして、おおまかな改修費用を出すけど、200万に抑えたいお金ないからなぁ、毎度の事だけど。
3年を目標にまずは、生活のBASEを築き上げ自給自足生活スタートだね。
おわり